Au cœur d’un environnement privilégié, à proximités des commerces et des écoles, maison familiale avec 3 chambres et un grand sous-sol, elle se compose de la façon suivante :
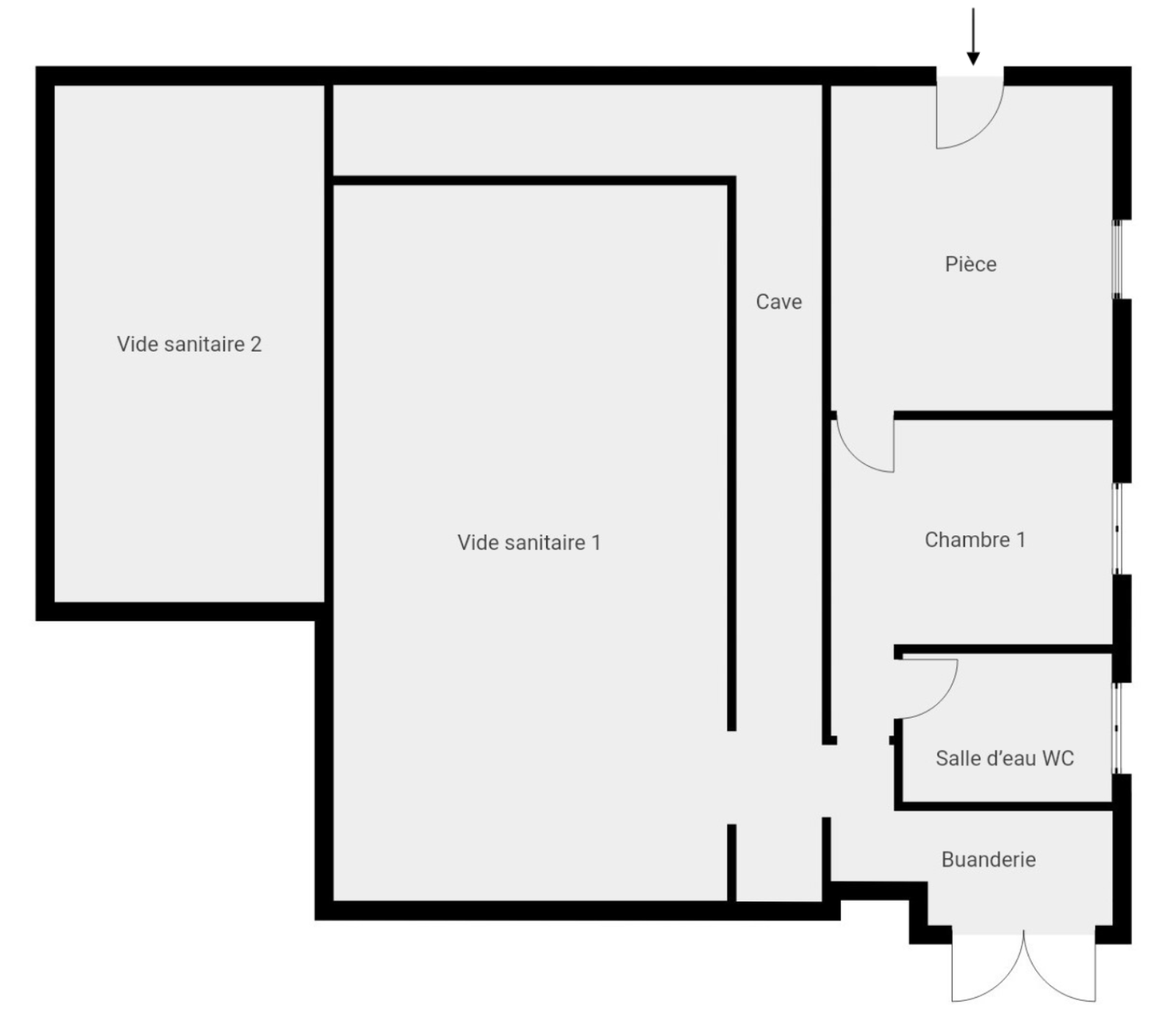
L’entrée s’ouvre sur une pièce de vie lumineuse, prolongée par une très grande terrasse. La maison dispose d’une cuisine indépendante avec cellier, de trois chambres, d’une salle de douche et de WC séparés. Au rez-de-jardin : un grand sous-sol complète le bien, offrant de nombreuses possibilités : espace de stockage, bureau, ou logement annexe selon vos besoins. Une salle de douche est également présente à ce niveau.
La maison est implantée sur un terrain d’environ 2 000 m², avec de larges restanques.
La maison a fait l’objet de rénovations récentes :
- Double vitrage
- Raccordement au tout-à-l’égout
- Murs lissés, peintures récentes
- Cuisine et salle de douche rénovées
- Isolation des combles (laine de verre)
- Isolation extérieure des murs nord et ouest
- Système de drainage des eaux pluviales
L’avis de l’agence : un bien idéal pour une petite famille, alliant calme, confort et potentiel, dans l’un des villages les plus prisés de l’arrière-pays. Belle opportunité à découvrir sans tarder !
