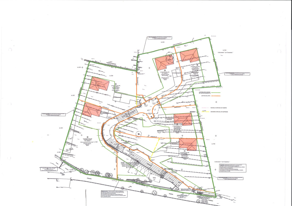
Opportunité rare - Lotissement de 6 lots sur la commune de Tourrettes-sur-Loup - Position dominante - Bonne exposition - Calme absolu - A partir de 295 000 € / Lot de 1063 m2 - Dossier estimatif à disposition pour construction d'une villa d'environ 140m2
Libre constructeur.
