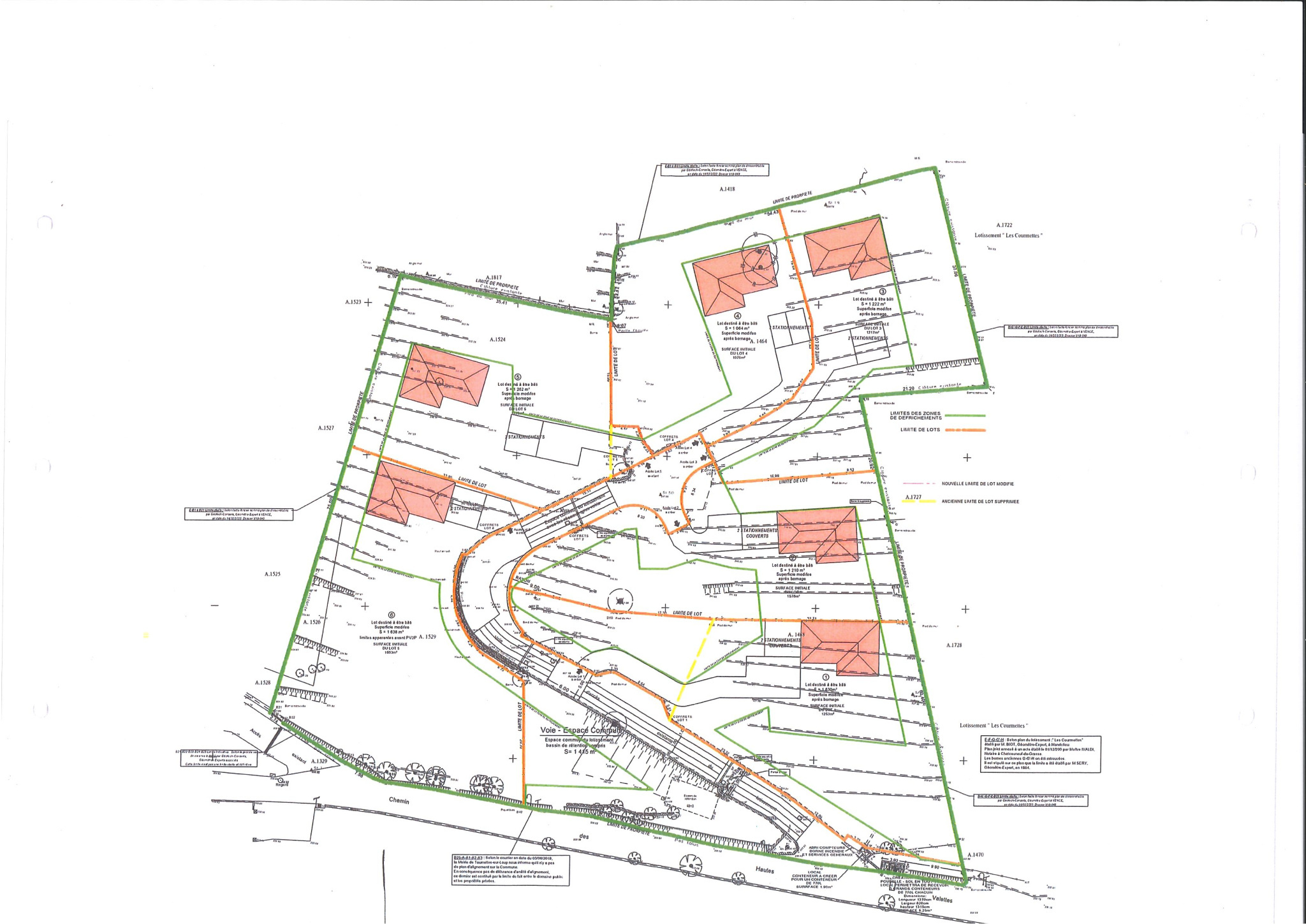
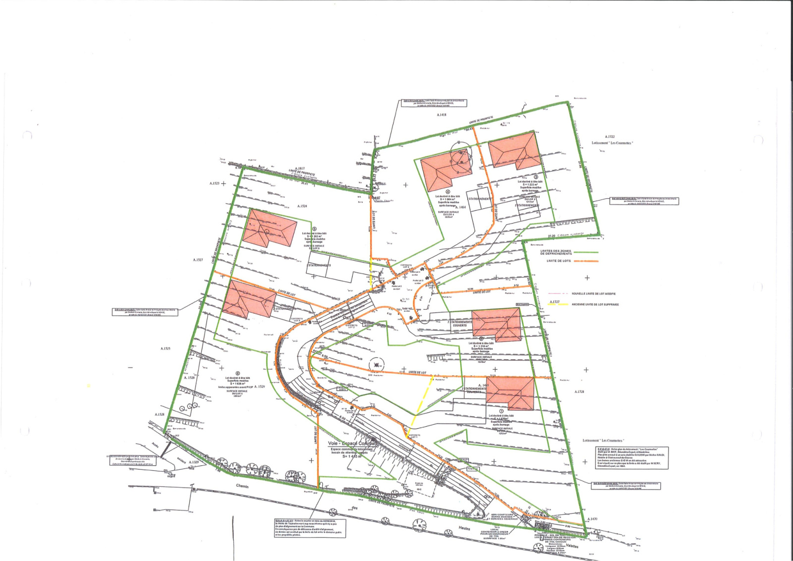
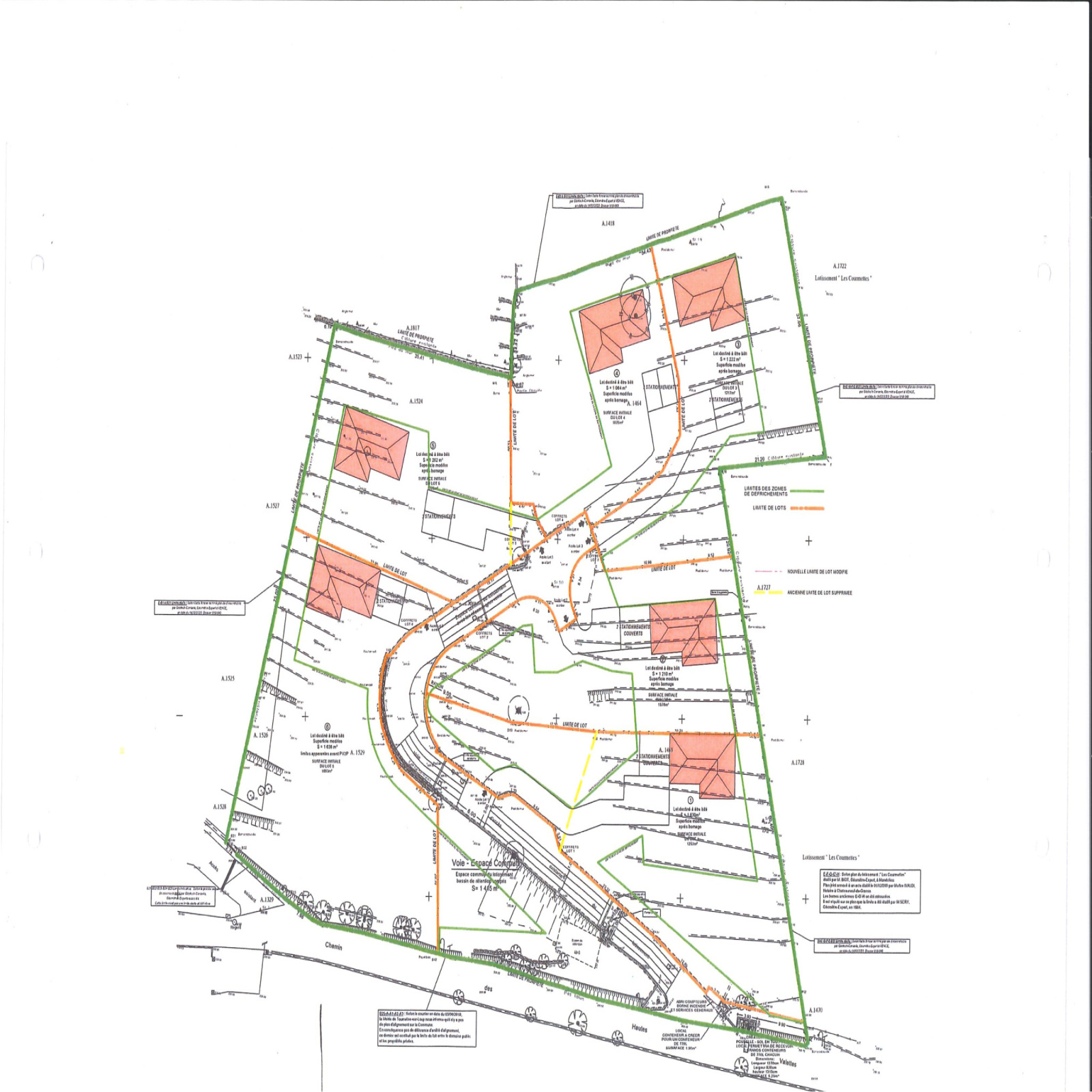
Au sein d'un quartier résidentiel situé sur le haut du quartier des valettes, lotissement comprenant 6 lots entièrement viabilisés.
Superficie des lots comprise entre 1065 m² et 1650 m²
Terrains en restanques.
Position dominante avec vue trés dégagée.
A Partir de 295.000 euros
