Il s'agit d'une ravissante petite maison mitoyenne, située sur la commune de Tourrettes-sur-Loup, un village réputé pour son cadre de vie très agréable, à la fois calme, accueillant et authentique, tout en restant proche des principaux axes et des commodités de la Côte d'Azur.
La maison est de plain-pied de 80m2 et implantée sur un magnifique terrain paysager de 1 885m2, entièrement plat, très bien exposé, offrant un environnement particulièrement agréable et facile à vivre.
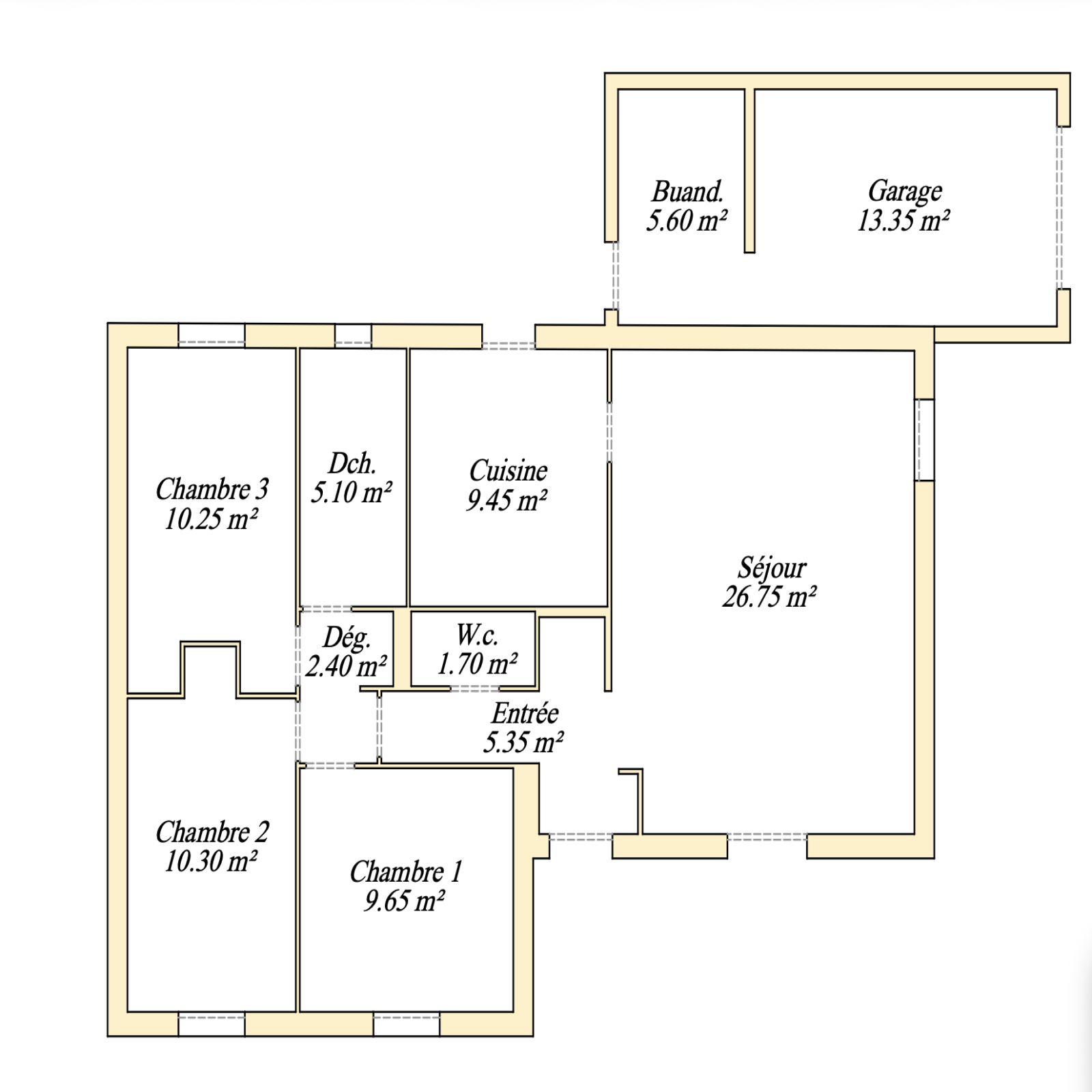
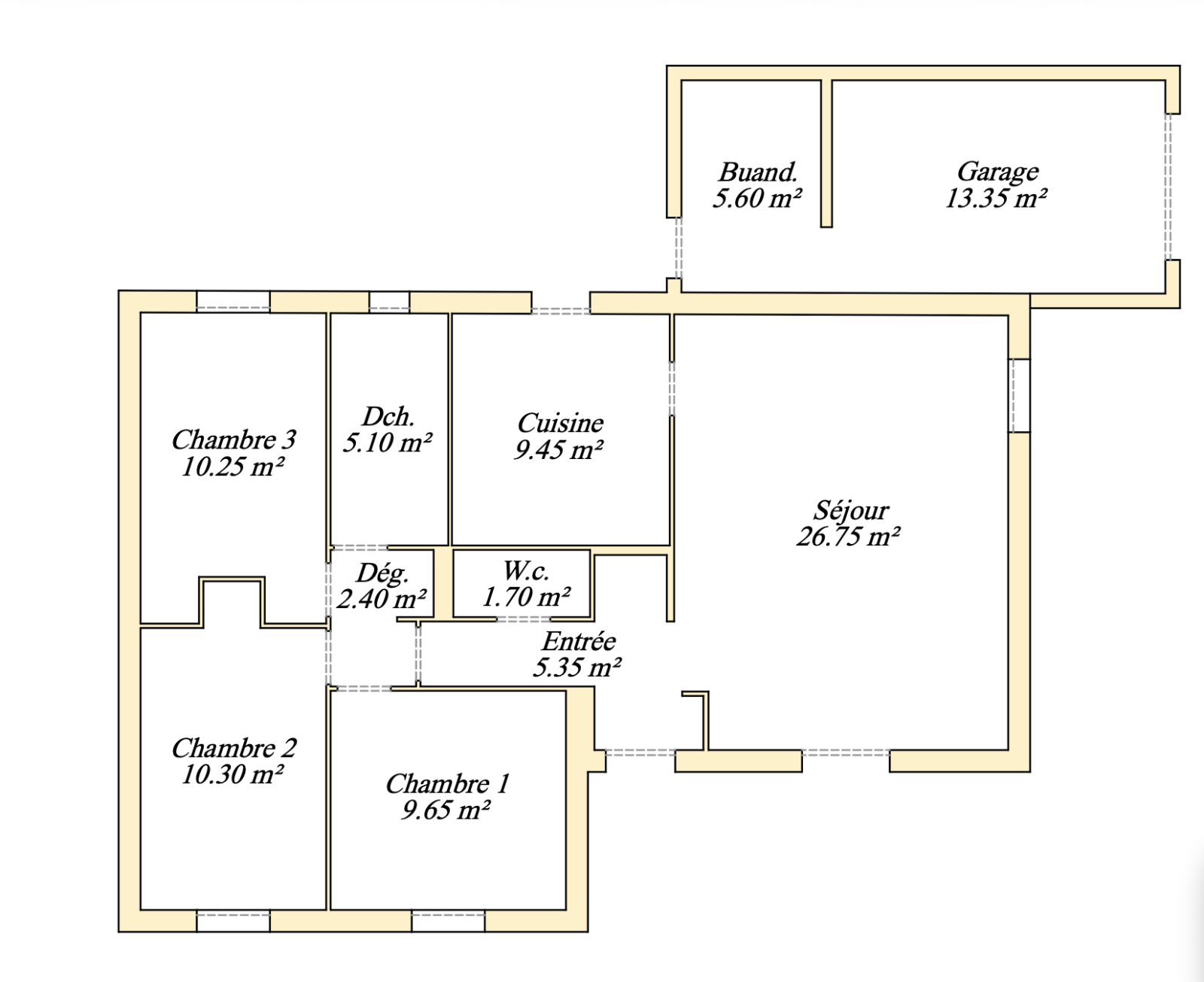
Elle se compose de :
-
une salle de séjour lumineuse,
-
trois chambres
-
une salle de bain
-
un WC indépendant
-
une cuisine
-
un dégagement desservant les différentes pièces.
L'ensemble offre un cadre de vie confortable, fonctionnel et harmonieux, idéal pour une résidence principale comme secondaire.
