Description de l'offre
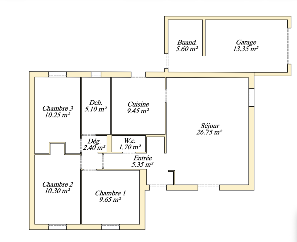
Il s'agit d'une ravissante petite maison mitoyenne, située sur la commune de Tourrettes-sur-Loup, un village réputé pour son cadre de vie très agréable, à la fois calme, accueillant et authentique, tout en restant proche des principaux axes et des commodités de la Côte d'Azur. La maison est de plain-pied de 80m2 et implantée sur un magnifique terrain paysager de 1 885m2, entièrement plat, très bien exposé, offrant un environnement particulièrement agréable et facile à vivre. Elle se compose de : une salle de séjour lumineuse, trois chambres une salle de bain un WC indépendant une cuisine un dégagement desservant les différentes pièces. L'ensemble offre un cadre de vie confortable, fonctionnel et harmonieux, idéal pour une résidence principale comme secondaire.
