Description de l'offre
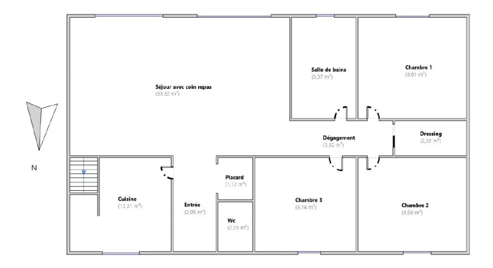
Cette jolie villa de 93m2 située à Vence est à découvrir au plus tôt. Idéalement placée à proximité des commerces, Elle offre un cadre parfait pour une famille ou pour ceux qui recherchent confort et praticité. Le séjour avec sa salle à manger est agréable; son ouverture sur la terrasse permet de profiter de la vue dégagée. Un poële à bois permettra de profiter de la chaleur cocooning de l'hiver. La cuisine est indépendante et semi-équipée. Trois chambres lumineuses. Une salle de bains. Un garage pratique vous permettra de stationner en toute sécurité, tout en conservant un espace supplémentaire pour le rangement ou un atelier. Le terrain de 600m² offre un espace extérieur idéal pour profiter et se détendre en toute tranquillité. Cette villa allie confort, emplacement privilégié et potentiel pour créer votre chez-vous idéal à Vence ! Les informations sur les risques auxquels ce bien est exposé sont disponibles sur le site Géorisques : www.georisques.gouv.fr
