Description de l'offre
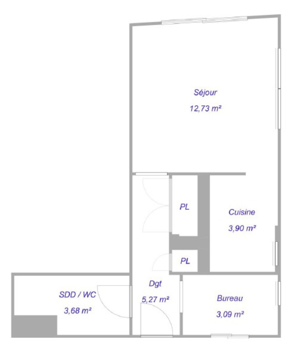
SOUS OFFRE // Opportunité unique en plein cœur de ville ! Découvrez cette ancienne loge de gardien à rénover entièrement, offrant un potentiel exceptionnel pour créer votre espace de vie idéal ou un investissement locatif attractif.
Située au sein d'une résidence de centre-ville, cette loge bénéficie d'un emplacement privilégié, à proximité immédiate de toutes les commodités, des commerces et des transports en commun.
Ce bien rare comprend également un parking en sous-sol, un atout majeur en centre-ville.
Imaginez les possibilités offertes par ce volume à transformer selon vos envies : studio cosy, petit appartement fonctionnel ou bureau indépendant.
Les informations sur les risques auxquels ce bien est exposé sont disponibles sur le site Géorisques
